安诗曼电器
手机:133-6050-3273
微信:133-6050-3273
地址:广东深圳坪山区青松西路8号鸿合科技园

我们都知道,如果长期处于潮湿的空气中的话就会影响我们的健康,所以,在一些湿度比较大的地方,很多人都会使用除湿机,可是,在使用的过程中难免会发生一些故障,那么,导致机器故障的原因有哪些呢?我们又该如何解决机器的故障呢?下面就一起来了解一下吧。除湿机是利用涂布在转轮上的硅胶将空气中的水份以物理方式吸附于...
了解详情
除湿机包含了很多相关的知识。因此,不妨对除湿机有一个很好的了解,这样才能拓宽大家的知识面,增加自己的知识面,从而从学习中获得一些收获和启发。1.是否有关于购买除湿机产品的考虑因素的通知?如果你想选一个质量好的,厂家一定要考虑吗?
了解详情
除湿机在工业和生活中的应用越来越广泛,除湿机加氟也就成了大家关心的问题。那么怎样判断除湿机是不是需要加氟呢?是不是一定需要专业的人员帮忙呢?其实,对于除湿机加氟的判断,自己就可以解决。第一个方法就是试一试。试什么呢?把除湿机正常开
了解详情
调温除湿机是在普通除湿机中增加温度控制单元,达到既除湿又降温的目的,适用于工业品及农副产品生产车间,往往根据所生产产品对空气湿度敏感性,需要对生产车间室内空气予以抽湿,达到其工艺性要求。调温除湿机根据客户的要求和资源,其升温方式可以有热泵升温、蒸气升温、电加热升温或集中方式组合升温。温度和湿度是室内...
了解详情
我们都知道,除湿机最大的作用就是降低空气中的湿度。那么除湿机一般一天开多久?除湿机一般一天开多久除湿机一天开多久一般是根据实际的室内湿度决定的,没有什么标准。而且除湿机可以设定时间,一般湿度到了一定范围就会自动停机,所以不会一直开着。除湿机湿度多少比较合适正常的室内湿度一般控制在50到60度比较合适...
了解详情
安诗曼ASM-8138D豆制品车间去雾除湿机及安诗曼高配置系列蒸煮车间蒸汽去除机技术参数:◆产品规格--基本规格:去除量1kg/h-20kg/h的常规机型,按照使用现场要求提供不同安装方式或特殊要求机型,可选择压缩机的品牌、去除量的大小,外形尺寸)。以上产品外观、技术参数与产品
了解详情
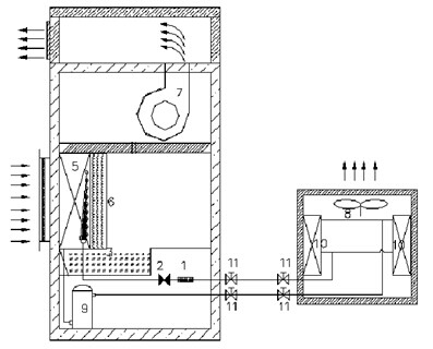
转轮除湿机是什么原理呢?转轮除湿系统采用硅胶或分子筛除湿转轮,如图所示,驱动电机每小时使除湿转轮旋转8~18次,连续重复吸湿再生动作,从而提供干燥空气。转轮分为吸湿区和再生区。空气中的水分在吸湿区被除掉后→送风机将干燥后的空气送入室内→吸收了水分的转轮移动到再生区→从逆方向送入的再生用空气(温风)将...
了解详情
许多行业都离不开除湿机,因为环境湿度过高,有可能导致生产出来的产品质量受损或者毁坏,购买专门的除湿机,是比较常见的控湿方法。那么,食品行业需要除湿机吗?接下来,安诗曼环境给大家讲解一下。食品行业,是离不开一个优质的生产环境,对湿度有相对高的要求,因为一些食品有可能因为吸收湿气,导致变
了解详情
除湿机为什么要经常清洗:除湿机现在被人慢慢的认识了,毕竟有了它,在梅雨季节来防潮除湿效果不要太好了,它跟空调一样,使用时间久了就需要清洗,这是为什么呢?其实很简单,定时清洗除湿机不但可以保证潮湿性能,而且对我们的身体健康也有好处。很多消费者跟小编反应,为什么我的除湿机才使用了一年,除湿性能就会下降呢...
了解详情
选购除湿机,不能只看价格还得看品牌新闻资讯:在选购除湿机时,面对市场上五花八门的除湿机品牌和产品,消费者凌乱了,是应该注重除湿机品牌而选购高价除湿机,还是追求实用选择价格适中的除湿机呢?今天小编就来跟大伙儿讨论讨论选购除湿机时,如何看待除湿机品牌和价格?◎价格实惠的除湿机怎么样?在这里所说的价格实惠...
了解详情
作为一种专业的干燥设备,目前主要分为家用除湿机,民用除湿机,工业除湿机等三大类。这三类除湿机的安装,因此只要知道了某一类的使用方法则可举一反三,撑握其它类型除湿机的使用方法。下面我来为大家综合介绍一下:除湿机的安装除湿机除湿机通常也称为抽湿机,主要应用于工业和家居生活中,作为一种专业的空气处理设备,...
了解详情
配电房怎么选除湿机:电力输送工作关系到生产、生活,关系到社会平稳,因此必须要做好。配电房是电力输送的最后一个环节,不能在这上面出现问题。要想保证电力配送工作顺利进行,那么就必须要保证电力设备可以在合适的环境下运行,这就需要做好防范潮湿的工作,特别是那些在地下室的配电房更是要做好这个问题,不能出现配电...
了解详情
每当梅雨季节来临时,遇到的最多的一个问题就是“我家里很潮,家用除湿机有效果吗?”得到的答复当然是肯定的。据淘宝统计,家用除湿机上半年成交量是52万台。庞大的成交数据足以证明这点。并且有40%左右是二次以上购买。有市场就有商家,近来
了解详情
1.掌握除湿机性能中的各项有关数据(从产品说明书中了解),特别是有关使用电压标准及启动间隔时间的规定,除湿机短时间内不可频繁启停,停机后应间隔至少3分钟后方可再启动,否则易损坏压缩机;2.除湿机电源应专线供电,电源处建议安装
了解详情
调温除湿机用蒸发器来给空气降温除湿,并收回体系的冷凝热,补偿空气中由于冷却除湿时流失的热量,是一种高效节能的除湿办法,现已广泛应用于粮食、木材等的除湿枯燥和高湿空间的除湿与温度操控。调温除湿机用蒸发器来给空气降温除湿,并收回体系的冷凝热,补偿空气中由于冷却除湿时流失的热量,是一种高效节能的除湿办法,...
了解详情
潮湿的天气侵袭中国大部分地区,大家的日常生活都进入了“发霉”的节奏。迫切的需要一台除湿机设备。现代气象学证明,湿度过大的环境会抑制人体汗液排出,容易使人觉得烦躁、疲倦,同时,还会引发多种身体疾病。此外,过高的湿度也会让生活环境发生很多
了解详情
防爆除湿机在危险品仓库的作用:什么是危险品?度娘是这么说的,危险品是指易燃、易爆、有强烈腐蚀性、有毒等物品的总称。通俗的说法就是可以危害人身健康、安全或对财产造成损害的物品或物质,比如强酸强碱、各种可以挥发的化工产品还有放射性物品等等。我们知道,仓库管理工作中,有一个很重要的提示,那就是远离火源,或...
了解详情
调温型除湿机适合高温环境中使用,在一些温度变化比较大,温度比较高的场合下,使用调温型除湿机的话,对于降低环境内温度和湿度会有比较显著和良好的效果,给我们的生产和工作带来的极大的方便。调温型除湿机的湿装置由除湿蛋和承座组成。所谓除湿蛋,就是一
了解详情
※除湿机的A.B型设计及使用温度A型设计的除湿机使用环境在15℃~35℃范围,B型设计的除湿机使用环境在5℃~38℃范围。A型设计的除湿机在环境温度低于15℃时热交换器结霜,压缩机停止运转而不能使用。而B型设计的除湿机因其配置了自动除霜装置,因而能够在环境温度地至5℃~15℃时自动除去热交换器的结霜...
了解详情
很多事物的保存都会因为空气的干燥或潮湿发生着变化,从而导致损失。除湿加湿一体机正是源于对空气的调节而研发出的产品。从目前的市场对产品的需求形势分析,一款专业的除湿加湿一体机有着较好的发展前景。为此,在这里小编为大家讲解一下有关
了解详情